Den tidigare aviserade satsningen på Strömsnäsbadet är nu på väg att bli verklighet. Kommunstyrelsens
arbetsutskott har beslutat att godkänna förfrågningsunderlaget för en
renovering/modernisering av Strömsnäsbadet. Därmed är ännu ett vallöfte på väg att uppfyllas!
Under fjolåret
genomfördes en del tekniska installationer som förberedande arbeten och några
samråd genomfördes med olika brukare för att få in synpunkter inför den
slutliga projekteringen.
Under hösten
och vintern har kommunen tagit fram handlingar för hela projektet innefattande
konstruktion, el, mark och VVS. Entreprenadformen är en totalentreprenad.
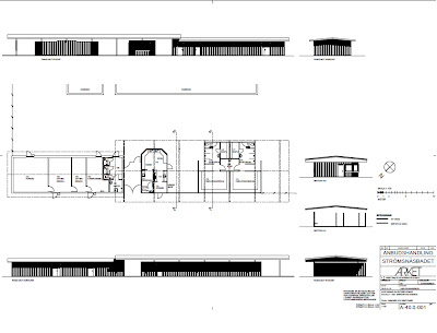
Upphandlingen
omfattar rivning av befintlig entrébyggnad samt uppförande av en ny byggnad på
totalentreprenad, markarbeten med planteringar och en ny, asfalterad parkering,
ny ytterbelysning, nya grindar och inhägnader och ytor med nya plattor. I den
nya byggnaden ingår bl a entré, kiosk, omklädningsrum med bastu och en
förrådsdel.
De båda stora
bassängerna kommer att målas om och runt bassängerna kommer plattläggning att
ske med 50 mm gummiplattor till en medelutsträckning om 3 m från bassängkanten.
Utöver detta
planerar kommunen att separat upphandla vattenrutschkanor samt en minigolfbana.
Befintliga vattenrutschbanor håller inte gällande standard, varför nya och
moderna vattenrutschbanor kommer att handlas upp.
Anbuden ska
vara beställaren tillhanda senast 2013-03-01. Det mest ekonomiskt fördelaktiga
anbudet kommer att antas med hänsyn till pris (90 %) samt kvalitet, erfarenhet
och kompetens (10 %).
Arbetet bedöms
kunna påbörjas i slutet av mars 2013 och skall vara färdigställda och
tillgängliga för besiktning den 31 maj 2013.
Om
förutsättningarna i förfrågningsunderlaget kan uppfyllas skulle en välbehövlig
och ganska omfattande renovering/modernisering av Strömsnäsbadet stå klar till
sommarsäsongen 2013.


Inga kommentarer:
Skicka en kommentar